Bouwnummer E.02.01
Amsterdam
1 foto
Beschikbaar
€ 1.855 p.m.
85 m²
3 kamers
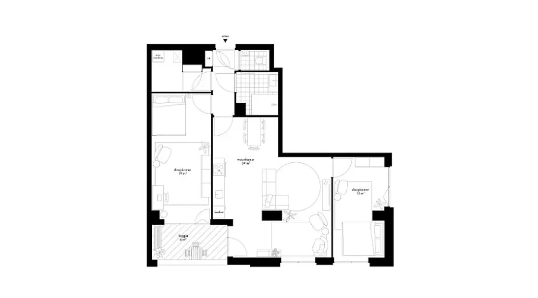
Woningomschrijving
Dit 3-kamerappartement ligt op 1e en 2e verdieping en heeft een woonoppervlakte van ongeveer 85 m². Het appartement is ingedeeld met een royale living met open keuken, loggia van 6 m² en twee ruime slaapkamers. De master bedroom biedt alle ruimte om een inloopkast te creëren. Of een werkhoek, als je regelmatig thuiswerkt. Aan de hal liggen het apart toilet, de badkamer en de berging. In de berging kun je de wasmachine en wasdroger plaatsen en staan de technische apparaten. Bovendien kun je er nog van alles opbergen, zoals ski- en kerstspullen. Het halletje bij de slaapkamers biedt ruimte voor extra kasten.
Specificaties
Woning
Status
Beschikbaar
Prijs
€ 1.855 p.m.
Woonoppervlakte
85 m²
Buitenoppervlakte
6 m²
Aantal kamers
3
Soort woning
Appartement
Omgeving
Houd mij op de hoogte van dit project
Vul hier je gegevens in zodat de makelaar/ ontwikkelaar je meer informatie kan toesturen.
