Bouwnummer 239
Amsterdam
3 foto's
Beschikbaar
€ 420.000 v.o.n
62 m²
3 kamers
Woningomschrijving
Dompel jezelf onder in de levendigheid van bouwnummer 239, een 62 m² grote 2-kamerwoning gelegen op de vijfde verdieping. Deze woning is perfect ontworpen voor diegenen die een actieve levensstijl nastreven. Met het energie label A++ ben je verzekerd van energiebesparing en duurzaamheid, wat bijdraagt aan een zorgeloze woonervaring.
Vanaf het balkon heb je een prachtig uitzicht, waar je elke ochtend kunt genieten van de zon. Dit is een ideale plek om de dag rustig te beginnen met een kopje thee of koffie. Deze buitenruimte biedt ook mogelijkheden voor wat groen, waardoor je je eigen persoonlijke sfeer kunt creëren.
Bouwnummer 239 benadrukt de variatie in woningtypes, wat het perfect maakt voor verschillende woonwensen. De nabijheid van sportfaciliteiten en recreatieve mogelijkheden versterkt de actieve levensstijl, waardoor je volop kunt genieten van wat de omgeving te bieden heeft. Dit appartement is meer dan alleen een plek om te wonen; het is een uitnodiging om te ontdekken en te genieten van het leven in de bruisende wijk Elzenhagen Zuid.
Koop & Deelwoning
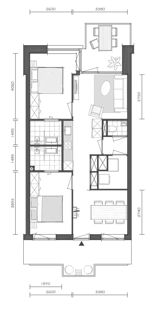
Wist je dat we in Noordhof 5 ook een nieuwe (unieke) woonconcept hebben: namelijk de Koop & Deelwoning. Dit zijn speciale woningen die je samen kunt kopen & delen. Niet perse met een partner, maar bijvoorbeeld met een goede vriend(in) of iemand op leeftijd. Dat maakt het kopen van een woning soms net wat interessanter of juist makkelijker. In Noordhof 5 hebben een aantal appartementen de mogelijkheid om te voor dit woonconcept te kunnen kiezen. Bouwnummer 239 is daar een van. Bij dit appartement kun je kiezen voor een plattegrond met 2 slaapkamers en een woningbrede woonkamer of een plattegrond met twee gelijkwaardige slaapkamers, 2 badkamers en deel je samen een woonkamer/keuken (basis plattegrond bouwnummer 239). Nieuwsgierig geworden naar dit woonconcept? Bekijk dan de plattegronden in de afbeeldingen met beide mogelijkheden en houd dan de site in de gaten en schrijf je in. Binnenkort zullen we je nog veel meer over de Koop & Deelwoning gaan vertellen!
ERFPACHT
Als eerste koper van de woning heb je de mogelijkheid om te kiezen voor afkoop van de erfpacht (eeuwigdurend) of voor betaling van jaarlijkse indexcanon. Wist je dat de indexcanon fiscaal aftrekbaar is? En dat het kopen op basis van jaarlijkse indexcanon ook andere financiële voordelen zou kunnen? Houd er rekening mee dat de canon verplichting van invloed is op de leencapaciteit. Onze hypotheekadviseur kan je hier meer over vertellen.
* De finale bedragen worden door de gemeente Amsterdam vastgesteld bij levering van een definitieve erfpachtaanbieding. Aan deze bedragen kunnen geen rechten worden ontleend.
** Dit bouwnummer heeft geen stallingsplaats toegewezen gekregen. Er is een aantal stallingsplaatsen/motoropstelplaatsen beschikbaar. Indien je hier interesse in hebt dien je dit kenbaar te maken op het inschrijfformulier. Bij meer belangstelling dan de beschikbare 'vrije' stallingsplaatsen/motoropstelplaatsen worden deze toegewezen door verkoper. De v.o.n.-prijs voor een stallingsplaats is € 45.000,- obv eeuwigdurende afgekochte erfpacht. De v.o.n.-prijs voor een motoropstelplaats is € 12.500,- obv eeuwigdurende afgekochte erfpacht.
Specificaties
Woning
Status
Beschikbaar
Prijs
€ 420.000 v.o.n
Servicekosten
€ 195
Woonoppervlakte
62 m²
Energielabel
A++
Aantal kamers
3
Soort woning
Appartement
