Bouwnummer 207
Amsterdam
3 foto's
Verkocht
€ 395.000 v.o.n
63 m²
3 kamers
Deze woning is niet meer beschikbaar, maak een account aan en ontvang voortaan het woningaanbod op maat.
Woningomschrijving
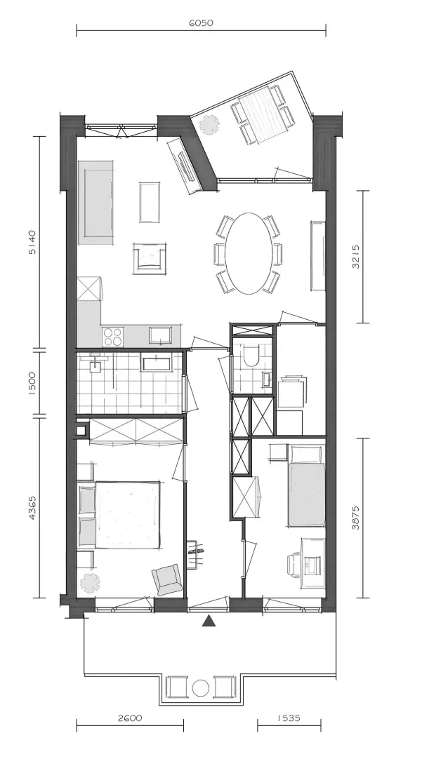
Met 63 m² aan woonoppervlakte is bouwnummer 207 een 3-kamerappartement op de vierde verdieping dat ruimte biedt voor een dynamisch leven. Het balkon laat je genieten van het ochtendgloren, ideaal voor een verkwikkend begin van de dag met de zon op je gezicht. Dit appartement heeft energielabel A+++, wat bijdraagt aan een milieuvriendelijke levensstijl.
De frisse en moderne inrichting van het appartement zorgt ervoor dat je je hier snel thuis voelt. De slimme indeling biedt mogelijkheden voor zowel ontspanning als een actieve levensstijl. In de bruisende omgeving zijn er volop mogelijkheden om te sporten, te winkelen of simpelweg te ontspannen in het groen. Bouwnummer 207 is een perfecte keuze voor iedereen die op zoek is naar een nieuw appartement in Amsterdam, met een focus op beleving en verbinding.
Koop & Deelwoning
Wist je dat we in Noordhof 5 ook een nieuwe (unieke) woonconcept hebben: namelijk de Koop & Deelwoning. Dit zijn speciale woningen die je samen kunt kopen & delen. Niet perse met een partner, maar bijvoorbeeld met een goede vriend(in) of iemand op leeftijd. Dat maakt het kopen van een woning soms net wat interessanter of juist makkelijker. In Noordhof 5 hebben een aantal appartementen de mogelijkheid om te voor dit woonconcept te kunnen kiezen. Bouwnummer 207 is daar een van. Bij dit appartement kun je kiezen voor een plattegrond met 2 slaapkamers en een woningbrede woonkamer (basis plattegrond bouwnummer 207) of een plattegrond met twee gelijkwaardige slaapkamers, 2 badkamers en deel je samen een woonkamer/keuken. Nieuwsgierig geworden naar dit woonconcept? Bekijk dan de plattegronden in de afbeeldingen met beide mogelijkheden en houd dan de site in de gaten en schrijf je in. Binnenkort zullen we je nog veel meer over de Koop & Deelwoning gaan vertellen!
ERFPACHT
Als eerste koper van de woning heb je de mogelijkheid om te kiezen voor afkoop van de erfpacht (eeuwigdurend) of voor betaling van jaarlijkse indexcanon. Wist je dat de indexcanon fiscaal aftrekbaar is? En dat het kopen op basis van jaarlijkse indexcanon ook andere financiële voordelen zou kunnen? Houd er rekening mee dat de canon verplichting van invloed is op de leencapaciteit. Onze hypotheekadviseur kan je hier meer over vertellen.
* De finale bedragen worden door de gemeente Amsterdam vastgesteld bij levering van een definitieve erfpachtaanbieding. Aan deze bedragen kunnen geen rechten worden ontleend.
** Dit bouwnummer heeft geen stallingsplaats toegewezen gekregen. Er is een aantal stallingsplaatsen/motoropstelplaatsen beschikbaar. Indien je hier interesse in hebt dien je dit kenbaar te maken op het inschrijfformulier. Bij meer belangstelling dan de beschikbare 'vrije' stallingsplaatsen/motoropstelplaatsen worden deze toegewezen door verkoper. De v.o.n.-prijs voor een stallingsplaats is € 45.000,- obv eeuwigdurende afgekochte erfpacht. De v.o.n.-prijs voor een motoropstelplaats is € 12.500,- obv eeuwigdurende afgekochte erfpacht.
Specificaties
Woning
Status
Verkocht
Prijs
€ 395.000 v.o.n
Woonoppervlakte
63 m²
Energielabel
A+++
Aantal kamers
3
Soort woning
Appartement
