Bouwnummer 205
Amsterdam
Beschikbaar
€ 395.000 v.o.n
63 m²
3 kamers

Woningomschrijving

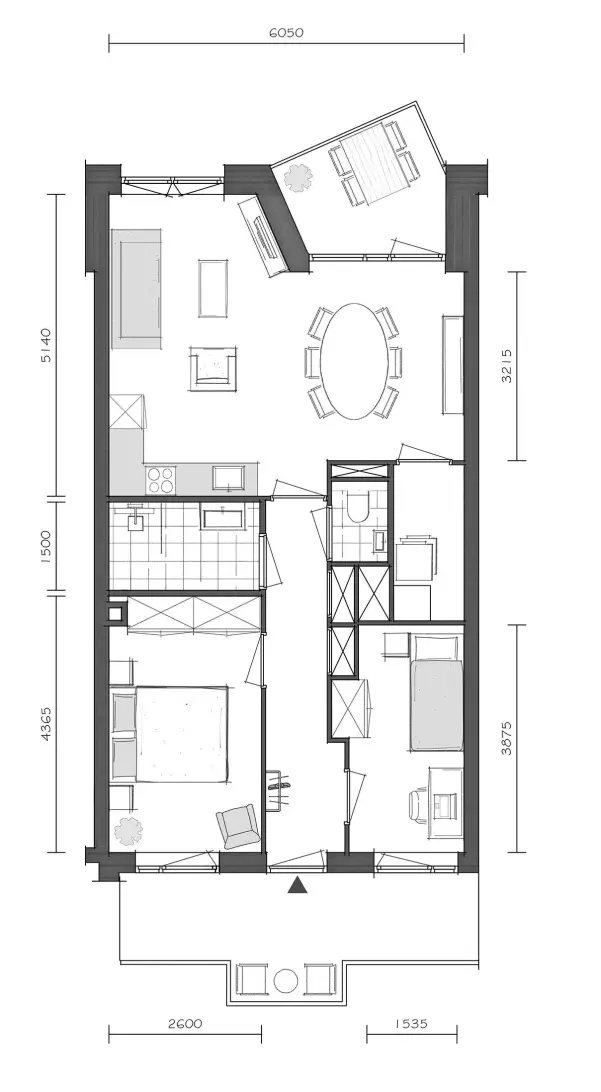
Bouwnummer 205 is een 3-kamerappartement van 63 m² op de vierde verdieping, waar elke vierkante meter is benut om een comfortabele en inspirerende woonomgeving te creëren. Op het balkon van dit appartement profiteer je van de eerste zonnestralen van de dag, perfect voor een ontspannen start met een boek of een ontbijtje buiten. Het appartement heeft energielabel A+++, wat bijdraagt aan een milieuvriendelijk en energiezuinig leven. In deze woning voel je de dynamiek van de stad om je heen, terwijl je tegelijkertijd kunt genieten van de rust en comfort binnen. De combinatie van moderne elementen en een uitnodigende sfeer maakt dit appartement de ideale uitvalsbasis voor het verkennen van de levendige omgeving. Met diverse groenvoorzieningen en sportfaciliteiten in de buurt, is er altijd iets te beleven. Bouwnummer 205 biedt niet alleen een thuis, maar ook een plek waar je actief kunt zijn en nieuwe ervaringen kunt opdoen. Koop & Deelwoning Wist je dat we in Noordhof 5 ook een nieuwe (unieke) woonconcept hebben: namelijk de Koop & Deelwoning. Dit zijn speciale woningen die je samen kunt kopen & delen. Niet perse met een partner, maar bijvoorbeeld met een goede vriend(in) of iemand op leeftijd. Dat maakt het kopen van een woning soms net wat interessanter of juist makkelijker. In Noordhof 5 hebben een aantal appartementen de mogelijkheid om te voor dit woonconcept te kunnen kiezen. Bouwnummer 205 is daar een van. Bij dit appartement kun je kiezen voor een plattegrond met 2 slaapkamers en een woningbrede woonkamer (basis plattegrond bouwnummer 205) of een plattegrond met twee gelijkwaardige slaapkamers, 2 badkamers en deel je samen een woonkamer/keuken. Nieuwsgierig geworden naar dit woonconcept? Bekijk dan de plattegronden in de afbeeldingen met beide mogelijkheden en houd dan de site in de gaten en schrijf je in. Binnenkort zullen we je nog veel meer over de Koop & Deelwoning gaan vertellen! ERFPACHT Als eerste koper van de woning heb je de mogelijkheid om te kiezen voor afkoop van de erfpacht (eeuwigdurend) of voor betaling van jaarlijkse indexcanon. Wist je dat de indexcanon fiscaal aftrekbaar is? En dat het kopen op basis van jaarlijkse indexcanon ook andere financiële voordelen zou kunnen? Houd er rekening mee dat de canon verplichting van invloed is op de leencapaciteit. Onze hypotheekadviseur kan je hier meer over vertellen. * De finale bedragen worden door de gemeente Amsterdam vastgesteld bij levering van een definitieve erfpachtaanbieding. Aan deze bedragen kunnen geen rechten worden ontleend. ** Dit bouwnummer heeft geen stallingsplaats toegewezen gekregen. Er is een aantal stallingsplaatsen/motoropstelplaatsen beschikbaar. Indien je hier interesse in hebt dien je dit kenbaar te maken op het inschrijfformulier. Bij meer belangstelling dan de beschikbare 'vrije' stallingsplaatsen/motoropstelplaatsen worden deze toegewezen door verkoper. De v.o.n.-prijs voor een stallingsplaats is € 45.000,- obv eeuwigdurende afgekochte erfpacht. De v.o.n.-prijs voor een motoropstelplaats is € 12.500,- obv eeuwigdurende afgekochte erfpacht.

Specificaties

Woning

Status
Beschikbaar
Prijs
€ 395.000 v.o.n
Servicekosten
€ 175
Woonoppervlakte
63 m²
Energielabel
A+++
Aantal kamers
3
Soort woning
Appartement

Omgeving

Beschikbaar
€ 395.000 v.o.n
63 m²
3 kamers
Schrijf je in voor onze nieuwsbrief
Ontvang actualiteiten over nieuwbouw in de regio direct in je mail.
Meld je aan