Bouwnummer 179
Amsterdam
3 foto's
Beschikbaar
€ 400.000 v.o.n
62 m²
3 kamers
Woningomschrijving
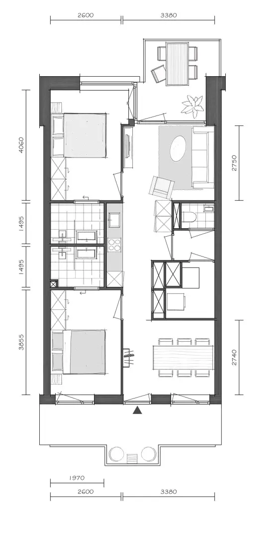
Met een woonoppervlakte van 62 m² op de derde verdieping, biedt bouwnummer 179 een moderne en comfortabele woonruimte. Dit appartement met twee kamers en energie label A+++ is perfect voor wie houdt van avontuur en beleving.
De wijk biedt een unieke combinatie van stedelijke dynamiek en natuurlijke schoonheid. Met sportfaciliteiten en groene ruimte in de nabijheid, is er altijd iets te doen en te ontdekken.
Dit appartement is niet alleen een woning, maar een plek waar je jouw levensstijl kunt integreren. De ruimte en sfeer van de woning maken het mogelijk om je eigen persoonlijke stempel te drukken en verbinding te maken met de gemeenschap om je heen.
Koop & Deelwoning
Wist je dat we in Noordhof 5 ook een nieuwe (unieke) woonconcept hebben: namelijk de Koop & Deelwoning. Dit zijn speciale woningen die je samen kunt kopen & delen. Niet perse met een partner, maar bijvoorbeeld met een goede vriend(in) of iemand op leeftijd. Dat maakt het kopen van een woning soms net wat interessanter of juist makkelijker. In Noordhof 5 hebben een aantal appartementen de mogelijkheid om te voor dit woonconcept te kunnen kiezen. Bouwnummer 179 is daar een van. Bij dit appartement kun je kiezen voor een plattegrond met 2 slaapkamers en een woningbrede woonkamer of een plattegrond met twee gelijkwaardige slaapkamers, 2 badkamers en deel je samen een woonkamer/keuken (basis plattegrond bouwnummer 179). Nieuwsgierig geworden naar dit woonconcept? Bekijk dan de plattegronden in de afbeeldingen met beide mogelijkheden en houd dan de site in de gaten en schrijf je in. Binnenkort zullen we je nog veel meer over de Koop & Deelwoning gaan vertellen!
ERFPACHT
Als eerste koper van de woning heb je de mogelijkheid om te kiezen voor afkoop van de erfpacht (eeuwigdurend) of voor betaling van jaarlijkse indexcanon. Wist je dat de indexcanon fiscaal aftrekbaar is? En dat het kopen op basis van jaarlijkse indexcanon ook andere financiële voordelen zou kunnen? Houd er rekening mee dat de canon verplichting van invloed is op de leencapaciteit. Onze hypotheekadviseur kan je hier meer over vertellen.
*De finale bedragen worden door de gemeente Amsterdam vastgesteld bij levering van een definitieve erfpachtaanbieding. Aan deze bedragen kunnen geen rechten worden ontleend.
Specificaties
Woning
Status
Beschikbaar
Prijs
€ 400.000 v.o.n
Servicekosten
€ 175
Woonoppervlakte
62 m²
Energielabel
A+++
Aantal kamers
3
Soort woning
Appartement
