Bouwnummer 178
Amsterdam
3 foto's
Beschikbaar
€ 400.000 v.o.n
63 m²
3 kamers
Woningomschrijving
Dit appartement met bouwnummer 178 heeft een woonoppervlakte van 63 m² en bevindt zich op de derde verdieping. Met twee slaapkamers en een energie label A+++ is dit de ideale plek voor een actieve levensstijl.
De wijk ademt avontuur en beleving. Je vindt er een perfecte balans tussen de levendigheid van de stad en de rust van de natuur. Met sportfaciliteiten en groene recreatiegebieden dichtbij, is er voor ieder wat wils.
Dit appartement biedt niet alleen een moderne woonervaring, maar ook de ruimte om je leven in te richten zoals jij dat wilt. De open sfeer en de mogelijkheid om te connecten met anderen in de wijk maken dit een ideale plek om je thuis te voelen.
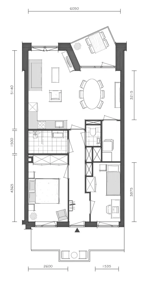
De getoonde plattegrond is van bouwnummer 143. De raam-, gevelindeling en de indeling van bouwnummer 178 kan afwijken van de getoonde plattegrond(en). Bij bouwnummer 178 is het de gevelindeling en het balkon afwijkend ten opzichte van bouwnummer 143.
Koop & Deelwoning
Wist je dat we in Noordhof 5 ook een nieuwe (unieke) woonconcept hebben: namelijk de Koop & Deelwoning. Dit zijn speciale woningen die je samen kunt kopen & delen. Niet perse met een partner, maar bijvoorbeeld met een goede vriend(in) of iemand op leeftijd. Dat maakt het kopen van een woning soms net wat interessanter of juist makkelijker. In Noordhof 5 hebben een aantal appartementen de mogelijkheid om te voor dit woonconcept te kunnen kiezen. Bouwnummer 178 is daar een van. Bij dit appartement kun je kiezen voor een plattegrond met 2 slaapkamers en een woningbrede woonkamer (basis plattegrond bouwnummer 178) of een plattegrond met twee gelijkwaardige slaapkamers, 2 badkamers en deel je samen een woonkamer/keuken. Nieuwsgierig geworden naar dit woonconcept? Bekijk dan de plattegronden in de afbeeldingen met beide mogelijkheden en houd dan de site in de gaten en schrijf je in. Binnenkort zullen we je nog veel meer over de Koop & Deelwoning gaan vertellen!
ERFPACHT
Als eerste koper van de woning heb je de mogelijkheid om te kiezen voor afkoop van de erfpacht (eeuwigdurend) of voor betaling van jaarlijkse indexcanon. Wist je dat de indexcanon fiscaal aftrekbaar is? En dat het kopen op basis van jaarlijkse indexcanon ook andere financiële voordelen zou kunnen? Houd er rekening mee dat de canon verplichting van invloed is op de leencapaciteit. Onze hypotheekadviseur kan je hier meer over vertellen.
*De finale bedragen worden door de gemeente Amsterdam vastgesteld bij levering van een definitieve erfpachtaanbieding. Aan deze bedragen kunnen geen rechten worden ontleend.
Specificaties
Woning
Status
Beschikbaar
Prijs
€ 400.000 v.o.n
Servicekosten
€ 175
Woonoppervlakte
63 m²
Energielabel
A+++
Aantal kamers
3
Soort woning
Appartement
