Bouwnummer 177
Amsterdam
3 foto's
Verkocht
€ 400.000 v.o.n
62 m²
3 kamers
Deze woning is niet meer beschikbaar, maak een account aan en ontvang voortaan het woningaanbod op maat.
Woningomschrijving
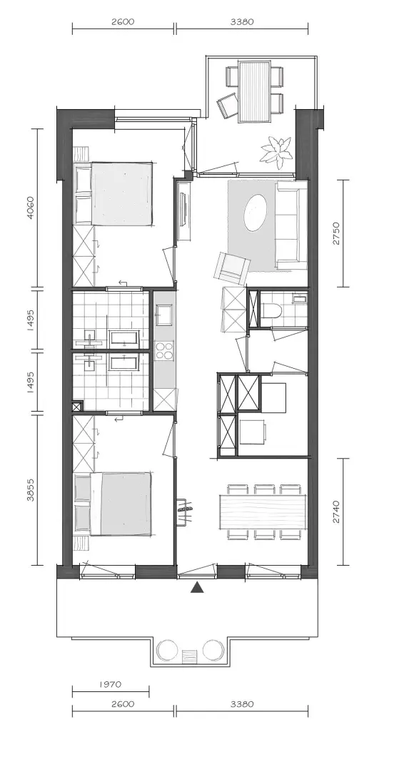
Met een woonoppervlakte van 62 m² op de derde verdieping, biedt bouwnummer 177 een moderne woonervaring in een levendige omgeving. Dit appartement met twee slaapkamers en energie label A+++ is perfect voor wie houdt van een actieve levensstijl.
De wijk biedt een mix van avontuur en gemeenschap, waar je kunt genieten van de natuur en tegelijkertijd de stad dichtbij hebt. Met sportfaciliteiten en recreatieve mogelijkheden in de nabijheid, is er altijd iets te doen.
Dit appartement is meer dan alleen een woning; het is een plek waar je jezelf kunt uiten, nieuwe ervaringen kunt opdoen en verbinding kunt maken met anderen. De sfeer van de buurt en de ruimte in de woning maken het mogelijk om je eigen stijl en leven in te vullen.
Koop & Deelwoning
Wist je dat we in Noordhof 5 ook een nieuwe (unieke) woonconcept hebben: namelijk de Koop & Deelwoning. Dit zijn speciale woningen die je samen kunt kopen & delen. Niet perse met een partner, maar bijvoorbeeld met een goede vriend(in) of iemand op leeftijd. Dat maakt het kopen van een woning soms net wat interessanter of juist makkelijker. In Noordhof 5 hebben een aantal appartementen de mogelijkheid om te voor dit woonconcept te kunnen kiezen. Bouwnummer 177 is daar een van. Bij dit appartement kun je kiezen voor een plattegrond met 2 slaapkamers en een woningbrede woonkamer of een plattegrond met twee gelijkwaardige slaapkamers, 2 badkamers en deel je samen een woonkamer/keuken (basis plattegrond bouwnummer 177). Nieuwsgierig geworden naar dit woonconcept? Bekijk dan de plattegronden in de afbeeldingen met beide mogelijkheden en houd dan de site in de gaten en schrijf je in. Binnenkort zullen we je nog veel meer over de Koop & Deelwoning gaan vertellen!
ERFPACHT
Als eerste koper van de woning heb je de mogelijkheid om te kiezen voor afkoop van de erfpacht (eeuwigdurend) of voor betaling van jaarlijkse indexcanon. Wist je dat de indexcanon fiscaal aftrekbaar is? En dat het kopen op basis van jaarlijkse indexcanon ook andere financiële voordelen zou kunnen? Houd er rekening mee dat de canon verplichting van invloed is op de leencapaciteit. Onze hypotheekadviseur kan je hier meer over vertellen.
*De finale bedragen worden door de gemeente Amsterdam vastgesteld bij levering van een definitieve erfpachtaanbieding. Aan deze bedragen kunnen geen rechten worden ontleend.
Specificaties
Woning
Status
Verkocht
Prijs
€ 400.000 v.o.n
Woonoppervlakte
62 m²
Energielabel
A+++
Aantal kamers
3
Soort woning
Appartement
