Bouwnummer 162
Amsterdam
4 foto's
Verkocht
€ 395.000 v.o.n
64 m²
2 kamers
Deze woning is niet meer beschikbaar, maak een account aan en ontvang voortaan het woningaanbod op maat.
Woningomschrijving
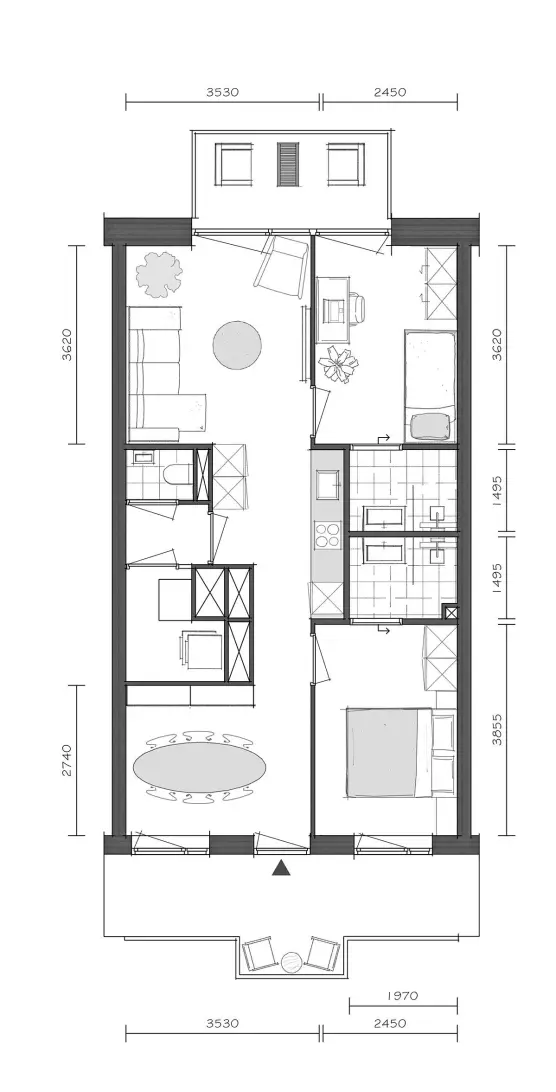
Bouwnummer 162 heeft een woonoppervlakte van 64 m² en beschikt over twee slaapkamers. Dit appartement op de tweede verdieping heeft een balkon op het westen, ideaal voor het genieten van de zon in de namiddag. De indeling van de woning is functioneel en uitnodigend, wat zorgt voor een prettige woonbeleving.
Met een energie label A+++ ben je verzekerd van een duurzame en comfortabele woning. De omgeving biedt volop mogelijkheden voor sport en recreatie, waardoor je altijd iets te beleven hebt.
Bouwnummer 162 is een plek waar je je thuis kunt voelen, met ruimte voor persoonlijke expressie en het delen van ervaringen. Het biedt de perfecte setting voor een dynamisch leven in Amsterdam, waar avontuur en ontdekking centraal staan.
Koop & Deelwoning
Wist je dat we in Noordhof 5 ook een nieuwe (unieke) woonconcept hebben: namelijk de Koop & Deelwoning. Dit zijn speciale woningen die je samen kunt kopen & delen. Niet perse met een partner, maar bijvoorbeeld met een goede vriend(in) of iemand op leeftijd. Dat maakt het kopen van een woning soms net wat interessanter of juist makkelijker. In Noordhof 5 hebben een aantal appartementen de mogelijkheid om te voor dit woonconcept te kunnen kiezen.
Bouwnummer 162 is daar een van. Bij dit appartement kun je kiezen voor of een plattegrond met 2 slaapkamers en een woningbrede woonkamer of een plattegrond met twee gelijkwaardige slaapkamers, 2 badkamers en deel je samen een woonkamer/keuken (basis plattegrond bouwnummer 162). Nieuwsgierig geworden naar dit woonconcept? Bekijk dan de 3d-plattegrond in de afbeeldingen met beide mogelijkheden en houd dan de site in de gaten en schrijf je in. Binnenkort zullen we je nog veel meer over de Koop & Deelwoning gaan vertellen!
De getoonde (basis) plattegrond is van bouwnummer 162. De alternatieve plattegrond (met woningbrede woonkamer) is van bouwnummer 163 en is hetzelfde als voor bouwnummer 162.
ERFPACHT
Als eerste koper van de woning heb je de mogelijkheid om te kiezen voor afkoop van de erfpacht (eeuwigdurend) of voor betaling van jaarlijkse indexcanon. Wist je dat de indexcanon fiscaal aftrekbaar is? En dat het kopen op basis van jaarlijkse indexcanon ook andere financiële voordelen zou kunnen? Houd er rekening mee dat de canon verplichting van invloed is op de leencapaciteit. Onze hypotheekadviseur kan je hier meer over vertellen.
*De finale bedragen worden door de gemeente Amsterdam vastgesteld bij levering van een definitieve erfpachtaanbieding. Aan deze bedragen kunnen geen rechten worden ontleend.
Specificaties
Woning
Status
Verkocht
Prijs
€ 395.000 v.o.n
Woonoppervlakte
64 m²
Energielabel
A+++
Aantal kamers
2
Soort woning
Appartement
