Bouwnummer 159
Amsterdam
3 foto's
Verkocht
€ 400.000 v.o.n
64 m²
3 kamers
Deze woning is niet meer beschikbaar, maak een account aan en ontvang voortaan het woningaanbod op maat.
Woningomschrijving
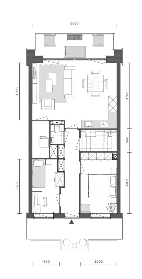
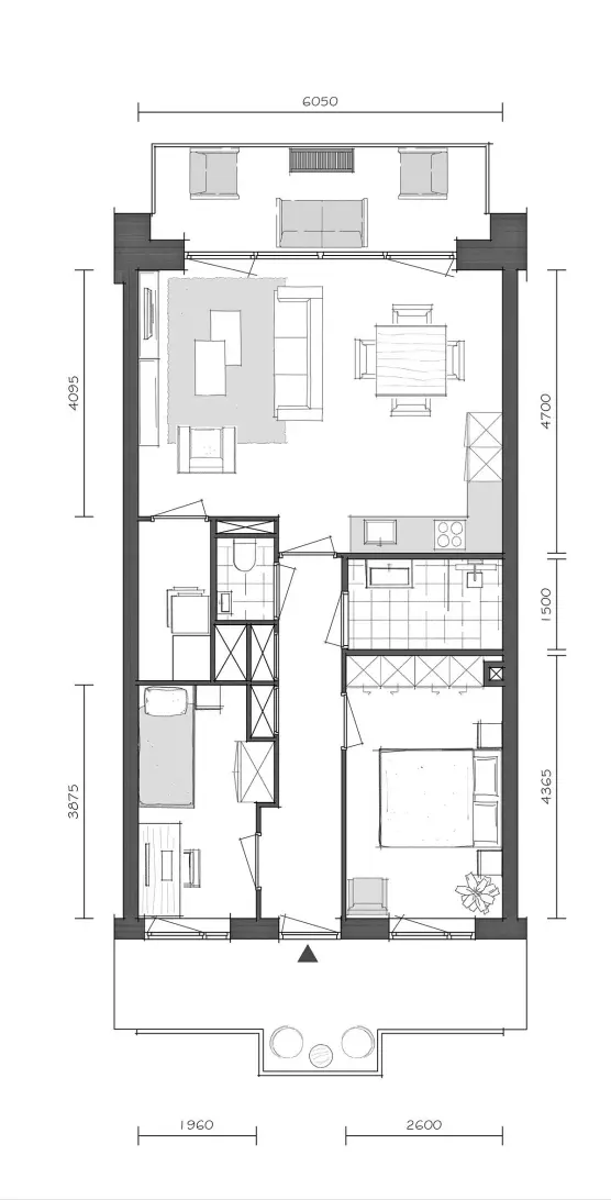
Bouwnummer 159 heeft een woonoppervlakte van 64 m² en biedt twee kamers. Dit appartement op de tweede verdieping heeft balkon op het westen, ideaal voor het genieten van de zon in de namiddag en tijdens de vroege avond. De ruimte is ontworpen om een sfeer van comfort en ontspanning te creëren, perfect voor een actieve levensstijl.
Met een energie label van A+++ is dit appartement niet alleen comfortabel, maar ook milieuvriendelijk. De omgeving biedt volop mogelijkheden voor sport en recreatie, waardoor je altijd iets te beleven hebt.
Bouwnummer 159 is een plek waar je je thuis kunt voelen, met ruimte voor persoonlijke expressie en het delen van ervaringen. Het biedt de perfecte setting voor een dynamisch leven in Amsterdam, waar avontuur en ontdekking centraal staan.
Koop & Deelwoning
Wist je dat we in Noordhof 5 ook een nieuwe (unieke) woonconcept hebben: namelijk de Koop & Deelwoning. Dit zijn speciale woningen die je samen kunt kopen & delen. Niet perse met een partner, maar bijvoorbeeld met een goede vriend(in) of iemand op leeftijd. Dat maakt het kopen van een woning soms net wat interessanter of juist makkelijker. In Noordhof 5 hebben een aantal appartementen de mogelijkheid om te voor dit woonconcept te kunnen kiezen.
Bouwnummer 159 is daar een van. Bij dit appartement kun je kiezen voor of een plattegrond met 2 slaapkamers en een woningbrede woonkamer (basis plattegrond bouwnummer 159) of een plattegrond met twee gelijkwaardige slaapkamers, 2 badkamers en deel je samen een woonkamer/keuken. Nieuwsgierig geworden naar dit woonconcept? Bekijk dan de 3d-plattegrond in de afbeeldingen met beide mogelijkheden en houd dan de site in de gaten en schrijf je in. Binnenkort zullen we je nog veel meer over de Koop & Deelwoning gaan vertellen!
De getoonde (basis) plattegrond is van bouwnummer 159. De alternatieve plattegrond (Koop&Deelwoning) is van bouwnummer 158 en is hetzelfde als voor bouwnummer 159.
ERFPACHT
Als eerste koper van de woning heb je de mogelijkheid om te kiezen voor afkoop van de erfpacht (eeuwigdurend) of voor betaling van jaarlijkse indexcanon. Wist je dat de indexcanon fiscaal aftrekbaar is? En dat het kopen op basis van jaarlijkse indexcanon ook andere financiële voordelen zou kunnen? Houd er rekening mee dat de canon verplichting van invloed is op de leencapaciteit. Onze hypotheekadviseur kan je hier meer over vertellen.
*De finale bedragen worden door de gemeente Amsterdam vastgesteld bij levering van een definitieve erfpachtaanbieding. Aan deze bedragen kunnen geen rechten worden ontleend.
Specificaties
Woning
Status
Verkocht
Prijs
€ 400.000 v.o.n
Woonoppervlakte
64 m²
Energielabel
A+++
Aantal kamers
3
Soort woning
Appartement
