Bouwnummer 147
Amsterdam
3 foto's
Verkocht
€ 395.000 v.o.n
63 m²
3 kamers
Deze woning is niet meer beschikbaar, maak een account aan en ontvang voortaan het woningaanbod op maat.
Woningomschrijving
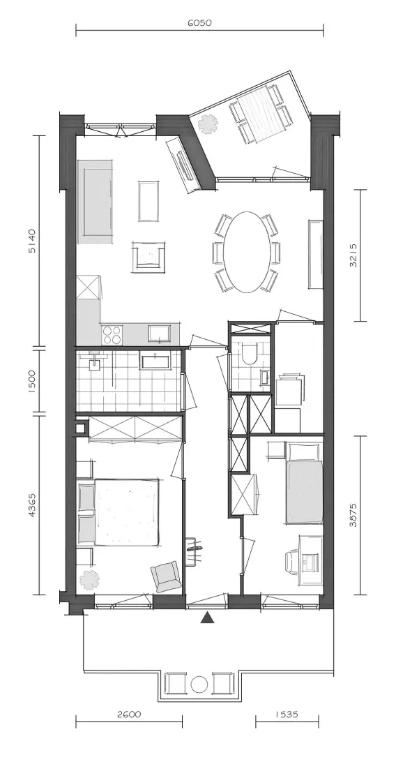
Met een woonoppervlakte van 63 m² en 2 slaapkamers, is dit appartement op de tweede verdieping perfect voor een actieve en ontdekkende levensstijl. De balkonligging zorgt ervoor dat je elke ochtend kunt genieten van de opwarmende zon, ideaal voor een moment van rust of een ontbijtje in de buitenlucht.
Dit appartement heeft energielabel A+++, wat bijdraagt aan een duurzame en comfortabele woonomgeving. De diversiteit van woningtypes in Elzenhagen Zuid maakt het mogelijk om je persoonlijke stijl te uiten en biedt ruimte voor een brede gemeenschap.
Geniet van de nabijheid van groen en recreatieve voorzieningen die uitnodigen tot avontuur en ontdekking. Deze locatie is niet alleen een huis, maar een plek waar je je kunt omringen met gelijkgestemden en samen kunt genieten van alles wat het leven te bieden heeft.
Koop & Deelwoning
Wist je dat we in Noordhof 5 ook een nieuwe (unieke) woonconcept hebben: namelijk de Koop & Deelwoning. Dit zijn speciale woningen die je samen kunt kopen & delen. Niet perse met een partner, maar bijvoorbeeld met een goede vriend(in) of iemand op leeftijd. Dat maakt het kopen van een woning soms net wat interessanter of juist makkelijker. In Noordhof 5 hebben een aantal appartementen de mogelijkheid om te voor dit woonconcept te kunnen kiezen.
Bouwnummer 147 is daar een van. Bij dit appartement kun je kiezen voor of een plattegrond met 2 slaapkamers en een woningbrede woonkamer (basis plattegrond bouwnummer 147) of een plattegrond met twee gelijkwaardige slaapkamers, 2 badkamers en deel je samen een woonkamer/keuken. Nieuwsgierig geworden naar dit woonconcept? Bekijk dan de 3d-plattegrond in de afbeeldingen met beide mogelijkheden en houd dan de site in de gaten en schrijf je in. Binnenkort zullen we je nog veel meer over de Koop & Deelwoning gaan vertellen!
De getoonde (basis) plattegrond is van bouwnummer 147. De alternatieve plattegrond (Koop&Deelwoning) is van bouwnummer 146 en is hetzelfde als voor bouwnummer 147.
ERFPACHT
Als eerste koper van de woning heb je de mogelijkheid om te kiezen voor afkoop van de erfpacht (eeuwigdurend) of voor betaling van jaarlijkse indexcanon. Wist je dat de indexcanon fiscaal aftrekbaar is? En dat het kopen op basis van jaarlijkse indexcanon ook andere financiële voordelen zou kunnen? Houd er rekening mee dat de canon verplichting van invloed is op de leencapaciteit. Onze hypotheekadviseur kan je hier meer over vertellen.
*De finale bedragen worden door de gemeente Amsterdam vastgesteld bij levering van een definitieve erfpachtaanbieding. Aan deze bedragen kunnen geen rechten worden ontleend.
Specificaties
Woning
Status
Verkocht
Prijs
€ 395.000 v.o.n
Woonoppervlakte
63 m²
Energielabel
A+++
Aantal kamers
3
Soort woning
Appartement
