Bouwnummer 146
Amsterdam
3 foto's
Verkocht
€ 395.000 v.o.n
62 m²
3 kamers
Deze woning is niet meer beschikbaar, maak een account aan en ontvang voortaan het woningaanbod op maat.
Woningomschrijving
Dit appartement van 62 m² op de tweede verdieping is een perfecte uitvalsbasis voor een actieve levensstijl. Met 2 slaapkamers is het een ideale plek om te wonen en te genieten van de levendigheid van de omgeving.
De balkonligging biedt volop zonneschijn in de ochtend, waardoor je elke dag kunt beginnen met een energieke boost. Het appartement heeft energielabel A+++, wat bijdraagt aan de energiezuinigheid en het comfort van je woonomgeving. Elzenhagen Zuid is een wijk die uitnodigt tot ontdekking en avontuur, met voldoende mogelijkheden om buiten te ontspannen.
De variatie aan woningtypes zorgt ervoor dat er voor ieder wat wils is, en de sfeer van saamhorigheid maakt het een geweldige plek om te wonen. Dit appartement biedt niet alleen comfort, maar ook de kans om nieuwe ervaringen op te doen.
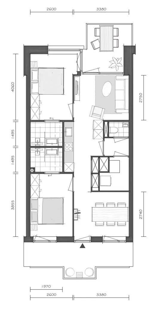
De getoonde (basis) plattegrond is van bouwnummer 146. De alternatieve plattegrond (met woningbrede woonkamer) is van bouwnummer 147 en is hetzelfde als voor bouwnummer 146.
Koop & Deelwoning
Wist je dat we in Noordhof 5 ook een nieuwe (unieke) woonconcept hebben: namelijk de Koop & Deelwoning. Dit zijn speciale woningen die je samen kunt kopen & delen. Niet perse met een partner, maar bijvoorbeeld met een goede vriend(in) of iemand op leeftijd. Dat maakt het kopen van een woning soms net wat interessanter of juist makkelijker. In Noordhof 5 hebben een aantal appartementen de mogelijkheid om te voor dit woonconcept te kunnen kiezen.
Bouwnummer 146 is daar een van. Bij dit appartement kun je kiezen voor of een plattegrond met 2 slaapkamers en een woningbrede woonkamer of een plattegrond met twee gelijkwaardige slaapkamers, 2 badkamers en deel je samen een woonkamer/keuken (basis plattegrond bouwnummer 146) . Nieuwsgierig geworden naar dit woonconcept? Bekijk dan de 3d-plattegrond in de afbeeldingen met beide mogelijkheden en houd dan de site in de gaten en schrijf je in. Binnenkort zullen we je nog veel meer over de Koop & Deelwoning gaan vertellen!
ERFPACHT
Als eerste koper van de woning heb je de mogelijkheid om te kiezen voor afkoop van de erfpacht (eeuwigdurend) of voor betaling van jaarlijkse indexcanon. Wist je dat de indexcanon fiscaal aftrekbaar is? En dat het kopen op basis van jaarlijkse indexcanon ook andere financiële voordelen zou kunnen? Houd er rekening mee dat de canon verplichting van invloed is op de leencapaciteit. Onze hypotheekadviseur kan je hier meer over vertellen.
*De finale bedragen worden door de gemeente Amsterdam vastgesteld bij levering van een definitieve erfpachtaanbieding. Aan deze bedragen kunnen geen rechten worden ontleend.
Specificaties
Woning
Status
Verkocht
Prijs
€ 395.000 v.o.n
Woonoppervlakte
62 m²
Energielabel
A+++
Aantal kamers
3
Soort woning
Appartement
