Bouwnummer 136
Amsterdam
1 foto
Verkocht
€ 315.000 v.o.n
52 m²
2 kamers
Deze woning is niet meer beschikbaar, maak een account aan en ontvang voortaan het woningaanbod op maat.
Woningomschrijving
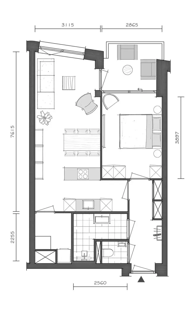
Met bouwnummer 136 heb je een praktisch en sfeervol appartement van 52 m². Het balkon voor een serene plek, perfect voor een rustig begin van de dag met een boek of een kopje thee.
Het energielabel A+++ garandeert een energiezuinige woonervaring. De levendigheid van de omgeving biedt een scala aan avontuurlijke mogelijkheden, van sportfaciliteiten tot gezellige eetgelegenheden. Dit appartement is een ideale keuze voor diegenen die willen genieten van de energie van de stad, gecombineerd met een comfortabele en moderne woonbeleving.
ERFPACHT
Als eerste koper van de woning heb je de mogelijkheid om te kiezen voor afkoop van de erfpacht (eeuwigdurend) of voor betaling van jaarlijkse indexcanon. Wist je dat de indexcanon fiscaal aftrekbaar is? En dat het kopen op basis van jaarlijkse indexcanon ook andere financiële voordelen zou kunnen? Houd er rekening mee dat de canon verplichting van invloed is op de leencapaciteit. Onze hypotheekadviseur kan je hier meer over vertellen.
*De finale bedragen worden door de gemeente Amsterdam vastgesteld bij levering van een definitieve erfpachtaanbieding. Aan deze bedragen kunnen geen rechten worden ontleend.
Specificaties
Woning
Status
Verkocht
Prijs
€ 315.000 v.o.n
Woonoppervlakte
52 m²
Energielabel
A+++
Aantal kamers
2
Soort woning
Appartement
