Bouwnummer 125
Amsterdam
1 foto
Verkocht
€ 590.000 v.o.n
112 m²
4 kamers
Deze woning is niet meer beschikbaar, maak een account aan en ontvang voortaan het woningaanbod op maat.
Woningomschrijving
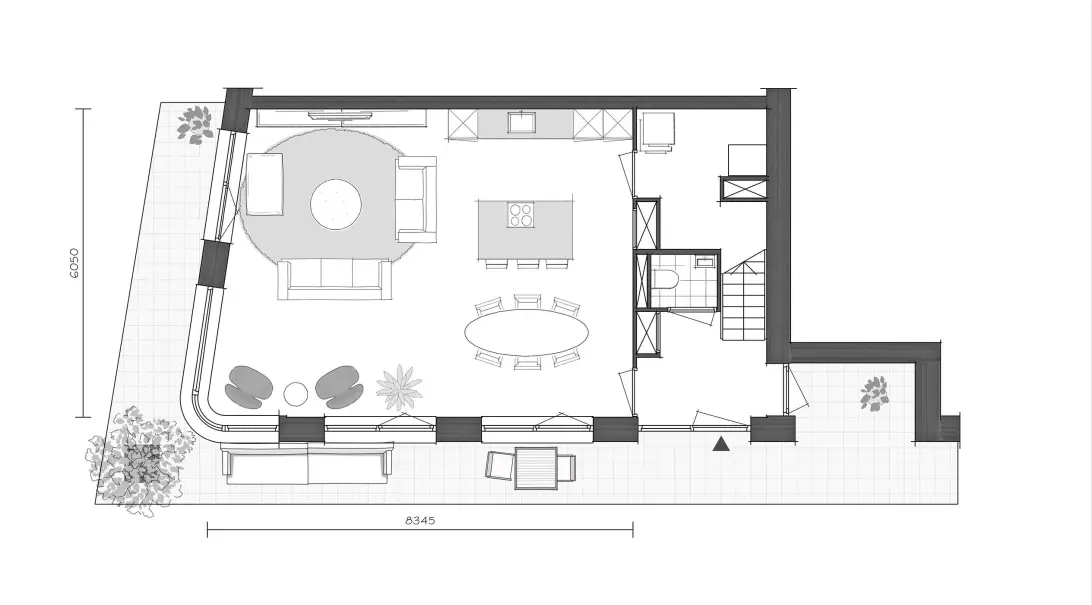
Op de iconische hoek van Noordhof 5 is een deze fraaie maisonnette van 112 m² gesitueerd. Deze woning heeft vier kamers (drie slaapkamers), een royale woon-/keukenruimte op de begane grond en een buitenruimte. Ideaal voor een levendige woonbeleving door brede woonkamer met een mogelijkheid voor een aparte werkkamer. Of je laat deze ruimte vervallen voor een nog grotere woon-/eetkamer. Maar dat is nog niet alles, op de eerste verdieping bevindt zich het fraaie balkon gelegen op het westen de perfecte plek om volop van de zon te genieten. Of je nu een boek leest op je balkon of een gezellige barbecue organiseert met vrienden, de buitenruimtes maken het leven in deze maisonnette extra aangenaam.
Het energie-label A++ garandeert niet alleen een duurzame woonomgeving, maar ook lagere energiekosten, wat bijdraagt aan jouw moderne levensstijl. De indeling van de woning is flexibel, waardoor je de ruimtes kunt inrichten naar jouw wensen en behoeften. De combinatie van levendigheid, groen en de nabijheid van voorzieningen maakt deze locatie ideaal voor een actieve en sociale levensstijl.
In Elzenhagen Zuid is er altijd iets te ontdekken, waardoor dit maisonnette appartement perfect aansluit bij jouw behoefte aan avontuur en beleving. Geniet van de ruimte, de zon en de levendige sfeer die deze woning te bieden heeft.
ERFPACHT
Als eerste koper van de woning heb je de mogelijkheid om te kiezen voor afkoop van de erfpacht (eeuwigdurend) of voor betaling van jaarlijkse indexcanon. Wist je dat de indexcanon fiscaal aftrekbaar is? En dat het kopen op basis van jaarlijkse indexcanon ook andere financiële voordelen zou kunnen? Houd er rekening mee dat de canon verplichting van invloed is op de leencapaciteit. Onze hypotheekadviseur kan je hier meer over vertellen.
*De finale bedragen worden door de gemeente Amsterdam vastgesteld bij levering van een definitieve erfpachtaanbieding. Aan deze bedragen kunnen geen rechten worden ontleend.
** De koopsom voor de stallingsplaats is niet inbegrepen in de v.o.n.-prijs van de appartement. De toegewezen stallingsplaats dient verplicht te worden afgenomen.
Specificaties
Woning
Status
Verkocht
Prijs
€ 590.000 v.o.n
Woonoppervlakte
112 m²
Energielabel
A++
Aantal kamers
4
Soort woning
Appartement
