Bouwnummer 110
Amsterdam
3 foto's
Verkocht
€ 590.000 v.o.n
103 m²
5 kamers
Deze woning is niet meer beschikbaar, maak een account aan en ontvang voortaan het woningaanbod op maat.
Woningomschrijving
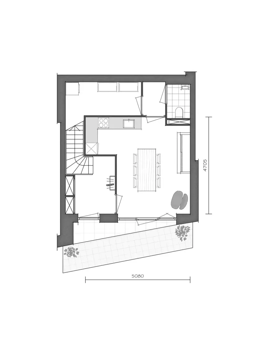
Bouwnummer 110 biedt een maisonnette van 103 m² met drie kamers, perfect voor een actieve levensstijl. De entree is gelegen op de begane grond. Deze woning beschikt over een slimme indeling die comfort en gebruiksgemak combineert. Met een terras op het zuiden en een dakterras van circa 18 m² gelegen aan de woonkamer op de eerste verdieping heb je de mogelijkheid om gedurende de dag van de zon te genieten of voor een ontspannen sfeer tijdens het buiten zijn.
Met het energie label A+++ is deze woning ook een duurzame keuze, wat bijdraagt aan een milieuvriendelijk leven. De buitenruimte is perfect voor momenten van ontspanning en sociale interactie, en bevordert een gevoel van gemeenschap.
Elzenhagen Zuid is een levendige wijk waar avontuur en ontdekking centraal staan. De nabijheid van sportfaciliteiten en groene gebieden maakt het leven hier bijzonder aantrekkelijk. Bouwnummer 110 is de ideale keuze voor iedereen die op zoek is naar een moderne woning in Amsterdam, met een actieve levensstijl en volop mogelijkheden voor verbinding.
ERFPACHT
Als eerste koper van de woning heb je de mogelijkheid om te kiezen voor afkoop van de erfpacht (eeuwigdurend) of voor betaling van jaarlijkse indexcanon. Wist je dat de indexcanon fiscaal aftrekbaar is? En dat het kopen op basis van jaarlijkse indexcanon ook andere financiële voordelen zou kunnen? Houd er rekening mee dat de canon verplichting van invloed is op de leencapaciteit. Onze hypotheekadviseur kan je hier meer over vertellen.
* Exacte bedragen zoals de v.o.n.-prijs (obv jaarlijkse indexcanon en op basis van afgekochte erfpacht) en de jaarlijkse indexcanon zullen bij de start van de verkoop definitief zijn vastgesteld. De bedragen die op de website staan weergeven kunnen dus aan veranderingen onderhevig zijn. Hier kunnen geen rechten aan worden ontleend.
** De koopsom voor de stallingsplaats is niet inbegrepen in de v.o.n.-prijs van de appartement. De toegewezen stallingsplaats dient verplicht te worden afgenomen.
Specificaties
Woning
Status
Verkocht
Prijs
€ 590.000 v.o.n
Woonoppervlakte
103 m²
Energielabel
A+++
Aantal kamers
5
Soort woning
Appartement
