Bouwnummer 102
Amsterdam
3 foto's
Beschikbaar
€ 545.000 v.o.n
94 m²
5 kamers
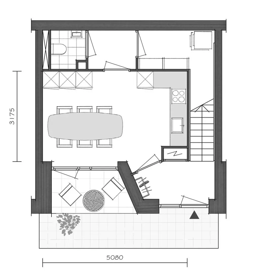
Woningomschrijving
Met een woonoppervlakte van 94 m² biedt bouwnummer 102 een ideale setting voor een dynamische levensstijl. Deze maisonnette beschikt over vier kamers (3 slaapkamers) en de entree bevindt zich op de begane grond, wat het toegankelijk maakt voor iedereen. De slimme indeling zorgt ervoor dat je optimaal gebruik kunt maken van de ruimte, terwijl de privé buitenruimte op het oosten en westen (heerlijk dakterras van ruim 31 m²) je uitnodigt om te genieten van de zon, van 's ochtends vroeg tot laat in de avond.
De combinatie van de buitenruimtes bevordert een fijne zonbeleving, perfect voor het creëren van een gezellige sfeer, of je nu geniet van een kopje koffie in de ochtendzon of een ontspannen avond met vrienden. Het energie label A++ benadrukt de duurzaamheid van deze woning, wat bijdraagt aan een milieuvriendelijke levensstijl.
De maisonnette biedt niet alleen comfort, maar ook een gevoel van gemeenschap. De ligging in Elzenhagen Zuid zorgt ervoor dat je omringd bent door een levendige omgeving, waar je kunt genieten van de nabijheid van groen en recreatieve mogelijkheden. Dit bouwnummer is een perfecte keuze voor wie een actieve en plezierige woonomgeving zoekt, met alle faciliteiten binnen handbereik.
ERFPACHT
Als eerste koper van de woning heb je de mogelijkheid om te kiezen voor afkoop van de erfpacht (eeuwigdurend) of voor betaling van jaarlijkse indexcanon. Wist je dat de indexcanon fiscaal aftrekbaar is? En dat het kopen op basis van jaarlijkse indexcanon ook andere financiële voordelen zou kunnen? Houd er rekening mee dat de canon verplichting van invloed is op de leencapaciteit. Onze hypotheekadviseur kan je hier meer over vertellen.
*De finale bedragen worden door de gemeente Amsterdam vastgesteld bij levering van een definitieve erfpachtaanbieding. Aan deze bedragen kunnen geen rechten worden ontleend.
** De koopsom voor de stallingsplaats is niet inbegrepen in de v.o.n.-prijs van de appartement. De toegewezen stallingsplaats dient verplicht te worden afgenomen.
Specificaties
Woning
Status
Beschikbaar
Prijs
€ 545.000 v.o.n
Servicekosten
€ 280
Woonoppervlakte
94 m²
Energielabel
A++
Aantal kamers
5
Soort woning
Appartement
