Bouwnummer 11
Assendelft
1 foto
Verkocht
€ 550.000 v.o.n
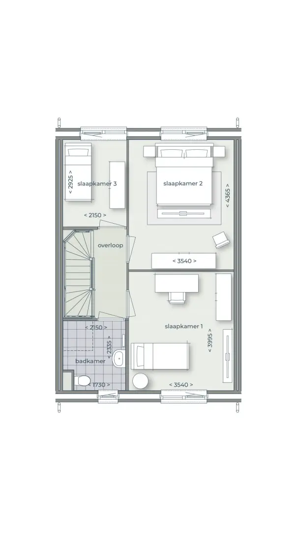
128 m²
4 kamers
Deze woning is niet meer beschikbaar, maak een account aan en ontvang voortaan het woningaanbod op maat.
Specificaties
Woning
Status
Verkocht
Prijs
€ 550.000 v.o.n
Woonoppervlakte
128 m²
Perceeloppervlakte
150 m²
Energielabel
A++++
Aantal kamers
4
Aantal slaapkamers
5
Soort woning
Tussenwoning
